Византия

Дом под ключ Уфа

строительство и проектирование домов от «СК Эмир»

2025

Количество спален:

3

Площадь:

170 м²

Цена от:

7,8 млн ₽

Схема оплаты:

Поэтапная

Описание проекта

Дом 2 этажа, 11,2х10,2 м;
Жилая площадь 170 м²;

Дом в предчистовой отделке 7 845 400 руб.

— свайно-ростверковый фундамент;
— перекрытия из сборного железобетона, т.е. из плит перекрытий (облегченки 160 мм, несущая способность как у обычных 800 кг/м2);
— кладка стен дома выполнена из керамических крупноформатных блоков с облицовкой керамическим кирпичом 1,4 нф двух цветов — «византия» и Neo, с элементами фигурной кладки;
— Крыша вальмовая, покрытие кровли — из фальца (двойной стоячий фальц) цвет графит, софиты и ламинация окон в цвет кровли.

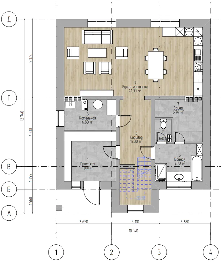
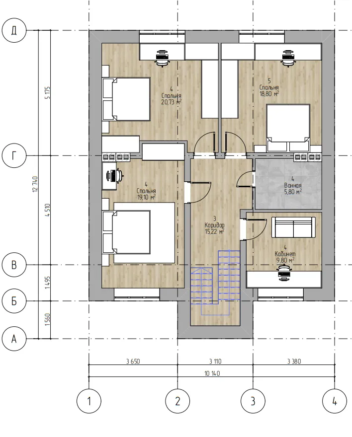
Планировка дома

1 Этаж

2 Этаж

Изображения готового проекта

Связаться с нами можно любым удобным способом
Будем рады ответить на интересующие вас вопросы
Политика конфиденциальности

СК «Эмир» 2013-2025, Все права защищены

Купить недвижимость в Уфе