Закат 125

Дом под ключ Уфа

строительство и проектирование домов от «СК Эмир»

2025

Количество спален:

3

Площадь:

125 м²

Цена от:

5,9 млн ₽

Схема оплаты:

Поэтапная

Описание проекта

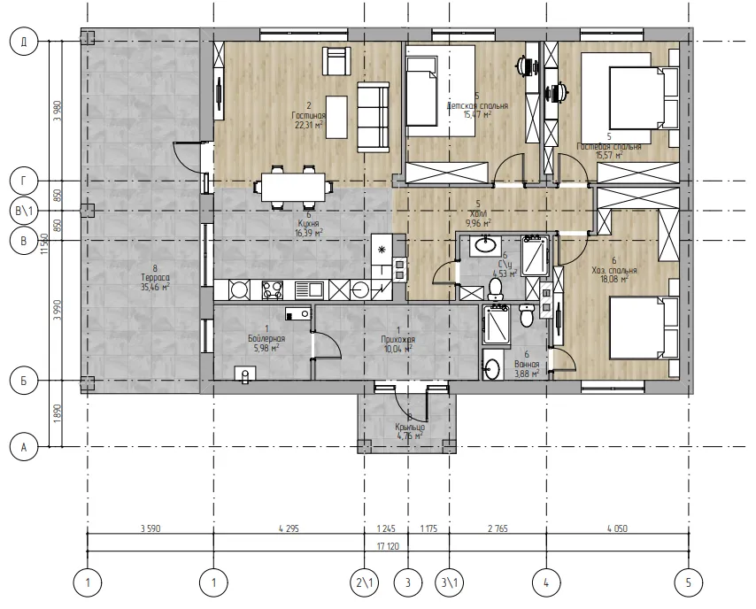
Дом 1 этаж, 14,3 х 10,4 м;
Жилая площадь 125 м²;
С террасой 36,5 м²;
И входной группой 6,73 м²;

от 5 947 373 руб.

— Свайно-ростверковый фундамент, Бетон М250;
— Пол 1 этажа — плиты перекрытия 160 мм (облегченки);
— стена керамический блок 380 мм + лицевой керамический кирпич 120 мм (черный, белый, серый) завод «Красная гвардия»;
— кровля 4-х скатная вальмовая (фальцевая цвет графит), на террасе 1 скатная.

Планировка дома

ИЗОБРАЖЕНИЯ ГОТОВОГО ПРОЕКТА

Связаться с нами можно любым удобным способом
Будем рады ответить на интересующие вас вопросы
Политика конфиденциальности

СК «Эмир» 2013-2025, Все права защищены

Купить недвижимость в Уфе